Проект инженерных сетей позволит грамотно проложить коммуникации и сделать дом по-настоящему комфортным и современным.

| Артикул | 4M711 |
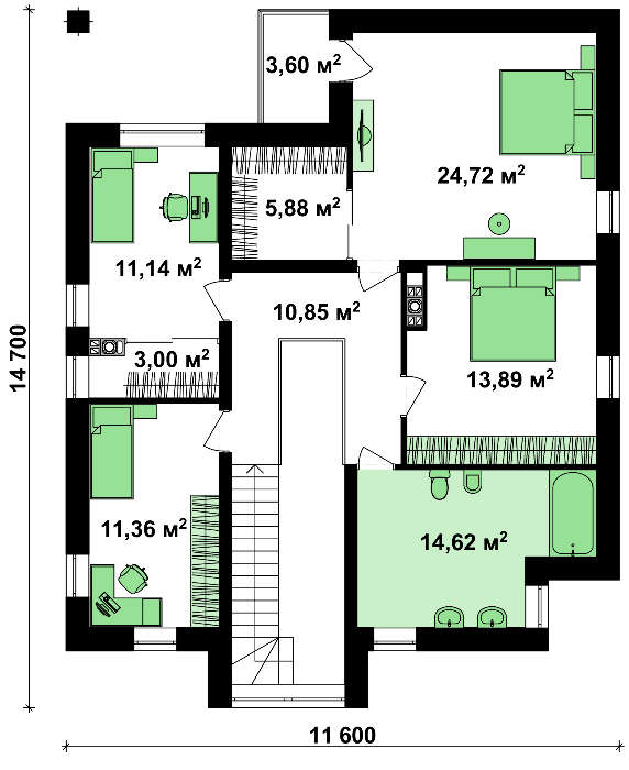
| Количество этажей: | 2 |
| Общая площадь: | 223.48 м2 |
| Жилая площадь: | 105.78 м2 |
| Высота дома: | 8.25 м |
| Высота потолка: | 2.80 м |
| Угол наклона кровли: | 2°/3 ° |
| Площадь крыши: | 126.00 м2 |
| Количество спален: | 4 |
| Количество санузлов: | 2 |
| Гараж: | Гараж на одно авто |
| Минимальный размер участка(длина): | 24.70 м |
| Минимальный размер участка(ширина): | 19.60 м |
Материалы: | |
| Стены: | газобетон, керамические блоки |
| Перекрытие: | монолитное перекрытие |
| Кровля: | ПВХ мембрана |
| Фундамент: | ленточный монолитно-сборной |
|
|
|
Ваш помощник свяжется с Вами в ближайшее время. |
|
| Артикул | 4M711 |
| Количество этажей: | 2 |
| Общая площадь: | 223.48 м2 |
| Жилая площадь: | 105.78 м2 |
| Высота дома: | 8.25 м |
| Высота потолка: | 2.80 м |
| Угол наклона кровли: | 2°/3 ° |
| Площадь крыши: | 126.00 м2 |
| Количество спален: | 4 |
| Количество санузлов: | 2 |
| Гараж: | Гараж на одно авто |
| Минимальный размер участка(длина): | 24.70 м |
| Минимальный размер участка(ширина): | 19.60 м |
Материалы: | |
| Стены: | газобетон, керамические блоки |
| Перекрытие: | монолитное перекрытие |
| Кровля: | ПВХ мембрана |
| Фундамент: | ленточный монолитно-сборной |
|
|
|
Ваш помощник свяжется с Вами в ближайшее время. |
|
Приобретая проект дома в компании Dom4M, Вы получаете комплект чертежей - 2 экземпляра, необходимый для проведения строительных работ и беспрепятственного получения разрешения на строительство.
Проект содержит три раздела – Архитектурный, Конструктивный и Инженерный: водоснабжение, отопление, вентиляция, канализация, электроснабжение (приобретается за дополнительную плату) + Пояснительная записка.
1. Архитектурный раздел:
2. Конструктивный раздел:
3. Инженерный раздел (приобретается по желанию за дополнительную плату):
Водоснабжение и канализация
Отопление, вентиляция
Электротехнические решения:
Проект является типовым и не учитывает конкретных условий строительства
Срок изготовления проекта дома составляет от 3 до 30 рабочих дней.
Объем проектной документации – от 50 до 100 страниц А4 и А3, в зависимости от сложности проекта
Наша команда Архитекторов, Конструкторов и Инженеров – всегда готовы воплотить Вашу мечту в реальность!
Мы можем вносить любые изменения в проект по Вашему пожеланию и адаптировать его с учетом конкретных геолого-топографических и климатических условий, за дополнительную плату.
Всегда рады Вам помочь!
Любой архитектурно-строительный проект состоит из трех частей: архитектурной, конструкторской
и инженерной. Это документ, без которого застройщик не получит разрешение на начало строительства.
Основной частью проекта являются архитектурный и конструкторский разделы. Если заказчик точно уверен, что в строительной бригаде найдутся толковые специалисты по инженерным сетям, то от разработки этой части проекта в специализированной фирме можно отказаться. Но необходимо понимать, что архитектор, конструктор и инженер работают над проектом сообща и такие моменты, как, например, штробы и проемы в стенах для прокладки труб и проводов, предусматриваются ими заранее.
Прежде, чем приступать к проектированию, необходимо определиться, какая будет коммуникация – индивидуальная или подключенная к централизованной системе.
Индивидуальное водоснабжение дает полную независимость от внешних условий. Но необходимо помнить, что понадобятся собственные источники воды, а бурение скважины обойдется в приличную сумму.
Подключение к централизованной системе потребует разработки проекта в соответствии с техническими условиями существующей сети и получение разрешения на врезку.
При подключении канализации к централизованной системе, порядок работы такой же, как и при подключении водоснабжения: оформление запроса в соответствующие службы, разработка проекта, получение разрешения на врезку в систему. Если вы решили организовать индивидуальную канализационную систему, то время от времени вам придется приглашать ассенизаторскую службу.
Если система вентиляции это всегда индивидуальное проектирование, то отопление может быть как индивидуальным (печное, воздушное, водяное, электрическое), так и с подключением к централизованным сетям.
Электрические системы можно разделить на обязательные и дополнительные. К обязательным относятся внутреннее и наружное освещение, системы вентиляции, кондиционирования и электроотопления. К дополнительным можно отнести такие системы, как "Теплый пол" или автоматизированное управление воротами.
ВАЖНО
Проект инженерных сетей позволит грамотно проложить коммуникации и сделать дом по-настоящему комфортным и современным.
Все наши типовые проекты учитывают основные потребности среднестатистической семьи, правда, в таком случае говорить об индивидуальности вашего будущего жилища не приходится. Но, чтобы дом выглядел оригинально и полностью соответствовал вашим
требованиям, мы готовы внести изменения в проект.
ВАЖНО:
Дом, построенный по типовому проекту, может выглядеть оригинально
Мы идем в ногу со временем и уже сегодня предлагаем вам возможность получить вместе с проектной документацией BIMx модель - основанной на технологии, обеспечивающей одновременную навигацию по 2D-документации и 3D-моделям зданий. _300x169.jpg)
*Файл вы получаете в электронном виде и используете с помощью приложения BIMX на мобильных устройствах Apple и Android
Цена: 480 BYN
(1).jpg)
BIMx модель - интерактивный просмотр трехмерной модели вашего дома. Теперь вы сможете «покрутить, походить внутри, увидеть ваш будущий Дом со всех сторон»
Сложно предугадать, какая почва будет на участке, где планируется построить дом. Поэтому типовые проекты домов разрабатываются с учетом усредненных параметров грунта. Но зачастую они существенно отличаются от инженерно-геологических параметров реального участка застройки. Следовательно, фундамент придется адаптировать под конкретный проект.
Адаптация фундамента, выполненная профессионалами, дает полную гарантию его надежности, а значит и надежности всего дома. Более того, строительство фундамента, адаптированного по уточненным инженерно-геологическим данным, может оказаться дешевле, чем вариант, изначально предложенный в проекте.
Подготовка проекта фундамента под конкретный участок
За желание быть оригинальным и непохожим на всех, приходится платить.
Это утверждение справедливо и для индивидуального проектирования домов. Да, такой проект всегда уникален и полностью учитывает все пожелания застройщика. Но он и обойдется дороже типового. Но здесь, как говорится, все зависит от предпочтений и финансовых возможностей клиента.
Но иногда бывает и так, что ситуацию может спасти только индивидуальное проектирование. Например, когда заказчик увидел дом в глянцевом журнале и категорически требует, чтобы его жилище выглядел именно так. Вот более прозаический случай: под застройку выбран нестандартный участок. А бывает и так, заказчик в уже выбранный типовой проект вносит такое количество изменений и дополнений, что проще, а главное, дешевле будет разработать "проект с нуля".
Дополнительно можно заказать:
Реализуйте свою индивидуальность с индивидуальным проектом!

Для любого застройщика вопрос из веселого детского стишка "что нам стоит дом построить…?" далеко не праздный. Тем более что стоимость возведения дома зависит от множества факторов. Поэтому, не стоит прикидывать расходы "на глазок". Не обладая полной информацией, посчитать все до мелочей не получится и, в конечном итоге, себе же дороже обойдется. И, кроме того, тщательный просчет стоимости материалов и работ влияет не только на ваши финансы, но и на сроки постройки дома.
Предельно точно рассчитать затраты на строительство вы сможете воспользовавшись услугой "Тендерное предложение", разработанной нашими специалистами. По сути, это документ, в котором приводится полный список всех стройматериалов и работ с указанием их объемов.
Наличие тендерного предложения позволяет:
тендерное предложение, подкрепленное информацией о стоимости материалов и строительных работ – серьезный аргумент для получения в банке кредитных средств.
Нашим заказчикам DOM4M предоставляем тендерное предложение в виде таблицы в формате *.xls. Это позволит вам, после тщательного проведения анализа документа, отредактировать его самостоятельно.
Пакет "Тендерное предложение"
Закажите подробную смету. Стройте с выгодой для себя!
В снежную зиму сугробы и лед на крыше доставляют массу хлопот. Перекрытия в современном доме вряд ли проломятся под их тяжестью, но снег за шиворотом и свисающие сосульки – это не самое приятное. Можно, конечно, и дедовским способом почистить крышу. Помахать лопатой на морозе 2-3 часа, время от времени прикрикивая на домочадцев в духе Василия
Алибабаевича из "Джентльменов удачи": "Ты сюда не ходи, ты сюда ходи! Снег башка попадет"…
Но в современном мире уже давно придуманы удобные и эффективные системы снеготаяния и антиобледенения. И, кстати, используются они не только для крыш. Их основа – нагревательные кабели. Системы работают по принципу "теплый пол", но отличаются большей мощностью и меньшим шагом укладки кабеля.
Пакет "Антилед" представляет собой проектную документацию, разработанную с учетом особенностей энергоснабжения конкретного дома:
Важно:
Ваш комфорт и безопасность в зимнее время
Зачастую застройщики не придают большого значения защите собственных домов от молнии: кто-то экономит, кто-то считает, кто-то надеется на "авось". Но года через 3-4 после постройки дома, многие вспоминают о защите от молнии. Толи у соседа в грозу погорела вся бытовая техника, толи на глаза попалась статистика о том, сколько за год случается пожаров из-за молний.
Предлагаем решить вопрос сразу: предусмотреть защиту уже на стадии проектирования дома. Об этом стоит задуматься хотя бы из чисто эстетических соображений – не нужно будет лишний раз долбить стены дома и тянуть токоотвод по фасаду, нарушая продуманный внешний вид здания.
Защита дома от молнии - это система устройств, расположенных как вне дома, так и внутри помещений. Внешняя молниезащита предупреждает попадание молнии в дом, внутренняя - обеспечивает защиту электросети от резких скачков напряжения. А специальные устройства защищают электротехнику от резких изменений электромагнитного поля в радиусе удара молнии.
Пакет "Молниезащита" от компании Dom4M гарантирует вам безопасноть дома даже в самую сильную грозу.
Цена: 420 BYN
Пакет "Молниезащита"
Защита от молнии: подумайте о безопасности заранее
«Центральный пылесос» представляет собой разновидность системы аспирации (удаление мелких частиц посредством засасывания их воздушным потоком).
.jpg)
Неотъемлемая часть современного дома - комфорт, чистота и свежий воздух
Толковые словари утверждают, что комфорт - это совокупность бытовых удобств, без которых немыслима жизнь
современного человека в современном доме. Большинство таких удобств закладываются еще на стадии проектирования. Но мы готовы расширить их список и помочь клиентам сделать собственное жилье максимально комфортным.
Поэтому наша компания Dom4m разработала для вас пакет "Комфортный дом", который позволит сделать жилище более прохладным в жаркий летний день, а в зимние холода – уютным и теплым.
Пакет "Комфортный дом"
Не отказывайте себе в комфорте. Дополнительный пакет "Комфортный дом" для тех, кто по-настоящему ценит домашний уют
Технология "Теплый пол" стала важной составляющей в поддержании оптимального температурного режима и организации общей комфортной среды в доме. Такое оборудование способно эффективно дополнить любую систему отопления. Кстати, иногда "Теплый пол" может выступать и как основной способ обогрева дома. За счет использования такого оборудования, температура пола на 2-3о выше, чем температура на уровне головы взрослого человека.
А все помещение равномерно прогревается на высоте до 1,5 метра. Как говорится: держи голову в холоде, а ноги в тепле.
Если в вашей семье есть маленький ребенок, это станет решением многих вопросов. Да и вам комфортное тепло в холодное время года не помешает.
Создайте комфортный климат в вашем доме. Пакет "Теплый пол"
Подобрать достойный проект дома для сейсмоопасного района - большая проблема. Сложность заключается в том, что специализированных проектов не так уж много. Поэтому подобрать дом, соответствующей вашим представлениям о комфортном и уютном жилище достаточно проблематично.
Компания Dom4M берется адаптировать любой собственный проект под сейсмоопасный регион, где разрешена жилая застройка. Таким образом, вам не придется соглашаться на компромиссный вариант – безопасность в ущерб внешнему виду или наоборот. Мы гарантируем, что ваш дом будет уютным, красивым и безопасным.
Адаптация проекта под сейсмозоны
Сейсмически безопасный дом: и надежно, и красиво
Типовой пакет документации предполагает наличие двух экземпляров проекта дома. Первый
остается у заказчика, а второй экземпляр передается строителям. В случае необходимости, вы можете дозаказать третий экземпляр проекта.
Такую копию не обязательно делать. Она может пригодиться вам только в нескольких случаях. Обычно, это делается для того, чтобы предоставить проект третьим лицам, например, поставщикам материалов. Если время дорого, то наличие дополнительного проекта дома поможет существенно ускорить работу по адаптации проекта, а наличие таких копий сразу у нескольких специалистов позволит существенно сократить сроки строительства.
А, кроме того, наличие копии проекта поможет, в случае необходимости, без лишней нервотрепки и затрат времени восстановить утерянные или испорченные документов.
Звоните! В компании Dom4M к вашим проблеме отнесутся с максимальным вниманием. Наши специалисты оформят дополнительную копию проекта в самые сжатые сроки.
Цена: 120 BYN
Дополнительная копия проекта
Для предусмотрительных: дополнительная копия проекта с печатью
Лилия вернулась домой после насыщенного дня, но день для нее только начинался: готовился прием в честь ее возвращения из Милана со званием «дизайнер года». Авто стало во встроенный гараж ее нового дома, хозяйка вошла в гостиную и спросила:
- Анна, все готово?
- Да, так что у вас немного времени, чтобы переодеться и отдохнуть, - ответила, отправилась на просторную кухню, - сказала гувернантка.
Лилия отправилась в свою спальню, открыла потайную дверь в гардеробную – ту самую комнату, которую она обожала больше всех остальных в своем двухэтажном жилище.
- Надень меня! - будто спорили платья.
- Тихо! - ответила им Лилия на правах хозяйки дома и сняла с плечиков элегантное облегающее платье кремового цвета.
Она присела на роскошную кровать, глядя в окно. Сегодня был не просто прием высоких гостей: среди них должен быть Тот, рядом с Кем ее сердцебиение учащалось, а разум терял контроль над эмоциями. Лилия перевела дыхание, надела платье, улыбнувшись своему идеальному отражению в зеркале до потолка, и спустилась в гостиную. Раздался звонок, а за дверью оказалась ее лучшая подруга Инга.
- Родная, с победой тебя! Готовься, мир моды: к тебе идет Лилия! - и она обняла подругу. – Покажи мне дом, пока остальные гости не пришли.
Лилия отвела подругу на второй этаж, распахивая по очереди все двери.
- Видишь, из моей спальни на улицу выходит балкон.
- И твой Ромео будет петь тебе серенады, стоя под ним с гитарой? - пошутила Инга.
Лилия попыталась улыбнуться, но вместо этого лишь покраснела.
- Ладно, шучу. Он ведь будет сегодня? Судя по твоему виду, подготовка заняла не менее суток, - предположила Инга.
- Двое, - тихо опровергла Лилия.
- Все равно выглядишь отлично. Да и вообще этот дом тебе к лицу: амбициозный, шикарный, стильный и очень современный, - закончила она. – Экстерьер – просто восторг. А остальными комплиментами я засыплю тебя после приема, - пообещала подруга.
Гости прибывали, гостиная наполнилась праздничным звоном бокалов и пожеланиями молодой успешной хозяйке. Все расхваливали дом, угощения, и, конечно же, саму Лилию: ее талант и умение обойти пространство и время, создавая свои шедевры, которые никого не оставляли равнодушными. Слегка устав, Лилия вышла на террасу, присев на плед около бассейна. За окнами звучал довольный смех гостей, а во дворе было тихо и спокойно, слегка прохладно, а гладь бассейна тихо плескалась от легкого ветра.
- Вот куда ты спряталась от меня, - услышала она обворожительный мужской голос.
Павел накинул ей на плечи свой пиджак, укутав от сквозняка, и продолжил:
- Милый дом. Знал, что выйдет отлично, но чтобы так… Нет слов: Мисс Стиль и ни шагу назад.
- Ты мне льстишь, - улыбнулась Лилия.
- А ты заставляешь меня скучать, - ответил Павел.
Лилия оставила бокал с недопитым коллекционным вином, встряхнула гордой головой и сказала:
- Двери моего дома всегда открыты для тебя.
- Если бы мы могли улететь на Луну, прихватив туда твой дом, - размечтался Павел. – Я бы… Да что я? У меня и так есть все, - и он обнял Лилию за плечи.
Летний вечер пьянил лучше вина, музыка, доносившаяся из дома, влекла в нереальный параллельный мир, а свет, льющийся из окон, сливался в одно яркое пятно и танцевал среди двора. Лилия засмотрелась на тихую воду, провела рукой по глади и ощутила прохладу, которая вернула ее в здесь и сейчас. Павел сидел, не произнося ни слова: она не знала, что скрывалось за его карими глазами. Что творилось в этой красивой мужской голове? Он всегда был для нее загадкой, которая приобретала разный смысл.
- Зачем нам Луна, когда там нет такого романтического лета, - сказала Лилия.
- Зато там есть невесомость, которая унесет нас сквозь вселенную к непознанным мирам.
- Непознанные миры внутри нас самих, - тихо ответила она.
- Наверное, ты - моя Луна, - вдруг произнес он.
Янтарные глаза не поддавались ни малейшей разгадке, и Лилия не знала, каков будет его следующий шаг. Она обернулась и посмотрела на дом: вот оно, ее лучшее творение, который она украшала сама. Здесь каждый уголок был ей знаком и понятен, это был ее маленький двухэтажный космос, в котором вечную мерзлоту заменял домашний уют. В этих стенах родилась ее новая коллекция, которую по достоинству оценили. А рядом с ней сидел Павел. Он был так близко, что она слышала его дыхание и биение сердца. Лилия не знала, что будет в следующую секунду: Мужчина-Непредсказуемость. Это пугало и манило ее, и она часто не понимала саму себя: где ее воля, а где – власть чувств.
- Под серою маской, и сложною формой
В тебе притаилась Душа.
И тайны печать по накатанной норме
Прошлась по Душе не спеша.
Ты – блик на окне, и загадка в сосуде,
Я грежу тобою во сне.
О, сердце мое! Никогда не забуду
Про горечь в пьянящем вине…, - прошептала Лилия.
- Ты – редкий цветок, потянувшийся к свету,
И сладость на мятных устах.
Едва уловима, чужим – незаметна,
Восторг вызываешь и страх…, - подхватил Павел.
- Но я не боюсь, подойду – и волною
Тебя в океан заберу.
Ты станешь Русалкою: только со мною
Разделишь рассвет поутру…, - закончили они хором.
- Ты помнишь…, - будто самой себе сказала Лилия.
- Есть вещи, которые не забываются, - ответил Павел.
Лилия смотрела на него и не знала, чем закончится этот вечер. Да она вообще мало что знала про будущее, и только когда будущее становилось настоящим, она могла вернуться в прошлое и немного попутешествовать там, складывая мозаику своих воспоминаний. Но так было не во всем: когда возводился ее дом, она знала каждый шаг, каждый жест, которым строители положат очередной кирпичик на стены ее дома, ее родного уютного места, которое не хочется покидать. Но мир чувств – совсем другое. Непредвиденность в солнечную погоду, и штиль внутри шторма. Ей хотелось забыться и сделать так, чтобы этот вечер не заканчивался. А они будут сидеть вдвоем, читая вслух их любимые стихи, и не считая минуты, которые убегают вдаль и тянут их в реальный мир. Они будут здесь вдвоем, на террасе, укрывшись перевернутыми песочными часами от мира, слившись с огоньками в окнах, застыв у прохладной воды. Рука коснется руки, сердце откроется сердцу, и уста произнесут самые важные слова, ради которых завоевывают вселенную, вершат великие дела и не спят ночами, слушая тишину…
Лилия вернулась домой после насыщенного дня, но день для нее только начинался: готовился прием в честь ее возвращения из Милана со званием «дизайнер года». Авто стало во встроенный гараж ее нового дома, хозяйка вошла в гостиную и спросила:
- Анна, все готово?
- Да, так что у вас немного времени, чтобы переодеться и отдохнуть, - ответила, отправилась на просторную кухню, - сказала гувернантка.
Лилия отправилась в свою спальню, открыла потайную дверь в гардеробную – ту самую комнату, которую она обожала больше всех остальных в своем двухэтажном жилище.
- Надень меня! - будто спорили платья.
- Тихо! - ответила им Лилия на правах хозяйки дома и сняла с плечиков элегантное облегающее платье кремового цвета.
Она присела на роскошную кровать, глядя в окно. Сегодня был не просто прием высоких гостей: среди них должен быть Тот, рядом с Кем ее сердцебиение учащалось, а разум терял контроль над эмоциями. Лилия перевела дыхание, надела платье, улыбнувшись своему идеальному отражению в зеркале до потолка, и спустилась в гостиную. Раздался звонок, а за дверью оказалась ее лучшая подруга Инга.
- Родная, с победой тебя! Готовься, мир моды: к тебе идет Лилия! - и она обняла подругу. – Покажи мне дом, пока остальные гости не пришли.
Лилия отвела подругу на второй этаж, распахивая по очереди все двери.
- Видишь, из моей спальни на улицу выходит балкон.
- И твой Ромео будет петь тебе серенады, стоя под ним с гитарой? - пошутила Инга.
Лилия попыталась улыбнуться, но вместо этого лишь покраснела.
- Ладно, шучу. Он ведь будет сегодня? Судя по твоему виду, подготовка заняла не менее суток, - предположила Инга.
- Двое, - тихо опровергла Лилия.
- Все равно выглядишь отлично. Да и вообще этот дом тебе к лицу: амбициозный, шикарный, стильный и очень современный, - закончила она. – Экстерьер – просто восторг. А остальными комплиментами я засыплю тебя после приема, - пообещала подруга.
Гости прибывали, гостиная наполнилась праздничным звоном бокалов и пожеланиями молодой успешной хозяйке. Все расхваливали дом, угощения, и, конечно же, саму Лилию: ее талант и умение обойти пространство и время, создавая свои шедевры, которые никого не оставляли равнодушными. Слегка устав, Лилия вышла на террасу, присев на плед около бассейна. За окнами звучал довольный смех гостей, а во дворе было тихо и спокойно, слегка прохладно, а гладь бассейна тихо плескалась от легкого ветра.
- Вот куда ты спряталась от меня, - услышала она обворожительный мужской голос.
Павел накинул ей на плечи свой пиджак, укутав от сквозняка, и продолжил:
- Милый дом. Знал, что выйдет отлично, но чтобы так… Нет слов: Мисс Стиль и ни шагу назад.
- Ты мне льстишь, - улыбнулась Лилия.
- А ты заставляешь меня скучать, - ответил Павел.
Лилия оставила бокал с недопитым коллекционным вином, встряхнула гордой головой и сказала:
- Двери моего дома всегда открыты для тебя.
- Если бы мы могли улететь на Луну, прихватив туда твой дом, - размечтался Павел. – Я бы… Да что я? У меня и так есть все, - и он обнял Лилию за плечи.
Летний вечер пьянил лучше вина, музыка, доносившаяся из дома, влекла в нереальный параллельный мир, а свет, льющийся из окон, сливался в одно яркое пятно и танцевал среди двора. Лилия засмотрелась на тихую воду, провела рукой по глади и ощутила прохладу, которая вернула ее в здесь и сейчас. Павел сидел, не произнося ни слова: она не знала, что скрывалось за его карими глазами. Что творилось в этой красивой мужской голове? Он всегда был для нее загадкой, которая приобретала разный смысл.
- Зачем нам Луна, когда там нет такого романтического лета, - сказала Лилия.
- Зато там есть невесомость, которая унесет нас сквозь вселенную к непознанным мирам.
- Непознанные миры внутри нас самих, - тихо ответила она.
- Наверное, ты - моя Луна, - вдруг произнес он.
Янтарные глаза не поддавались ни малейшей разгадке, и Лилия не знала, каков будет его следующий шаг. Она обернулась и посмотрела на дом: вот оно, ее лучшее творение, который она украшала сама. Здесь каждый уголок был ей знаком и понятен, это был ее маленький двухэтажный космос, в котором вечную мерзлоту заменял домашний уют. В этих стенах родилась ее новая коллекция, которую по достоинству оценили. А рядом с ней сидел Павел. Он был так близко, что она слышала его дыхание и биение сердца. Лилия не знала, что будет в следующую секунду: Мужчина-Непредсказуемость. Это пугало и манило ее, и она часто не понимала саму себя: где ее воля, а где – власть чувств.
- Под серою маской, и сложною формой
В тебе притаилась Душа.
И тайны печать по накатанной норме
Прошлась по Душе не спеша.
Ты – блик на окне, и загадка в сосуде,
Я грежу тобою во сне.
О, сердце мое! Никогда не забуду
Про горечь в пьянящем вине…, - прошептала Лилия.
- Ты – редкий цветок, потянувшийся к свету,
И сладость на мятных устах.
Едва уловима, чужим – незаметна,
Восторг вызываешь и страх…, - подхватил Павел.
- Но я не боюсь, подойду – и волною
Тебя в океан заберу.
Ты станешь Русалкою: только со мною
Разделишь рассвет поутру…, - закончили они хором.
- Ты помнишь…, - будто самой себе сказала Лилия.
- Есть вещи, которые не забываются, - ответил Павел.
Лилия смотрела на него и не знала, чем закончится этот вечер. Да она вообще мало что знала про будущее, и только когда будущее становилось настоящим, она могла вернуться в прошлое и немного попутешествовать там, складывая мозаику своих воспоминаний. Но так было не во всем: когда возводился ее дом, она знала каждый шаг, каждый жест, которым строители положат очередной кирпичик на стены ее дома, ее родного уютного места, которое не хочется покидать. Но мир чувств – совсем другое. Непредвиденность в солнечную погоду, и штиль внутри шторма. Ей хотелось забыться и сделать так, чтобы этот вечер не заканчивался. А они будут сидеть вдвоем, читая вслух их любимые стихи, и не считая минуты, которые убегают вдаль и тянут их в реальный мир. Они будут здесь вдвоем, на террасе, укрывшись перевернутыми песочными часами от мира, слившись с огоньками в окнах, застыв у прохладной воды. Рука коснется руки, сердце откроется сердцу, и уста произнесут самые важные слова, ради которых завоевывают вселенную, вершат великие дела и не спят ночами, слушая тишину…

