С правилами ознакомлен(а) Авторизация
Авторизация нужна для сохраниения Вашего "Избранного".
Войти через:

Дорогие посетители! В последнее время возникают проблемы с мобильной связью. Если вы не смогли дозвониться, пишите - мессенджер/ эл.почта/ заказ звонка. Со всеми обязательно свяжемся). Приносим свои извинения за временные неудобства.

Ваша Смета  позволит Вам:

Стоимость сметной документации составляет 220 BYN.

Сметная документация предоставляется с подробно расписанными строительными материалами, указано их количество, а также приведен перечень предстоящих работ и их объем, в виде таблицы в формате *.xls. – без цен.

При заказе проекта дома в компании DOM4M смета составляется в течении 10 дней.

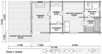
Первый этаж:
Небольшой красивый особняк в традиционном стиле
Первый этаж:
Небольшой красивый особняк в традиционном стиле
Чердак:
Небольшой красивый особняк в традиционном стиле
Чердак:
Небольшой красивый особняк в традиционном стиле
  • 4m011v
3 260 BYN
Цена: 3 260BYN
Цена: 3 260 BYN
Площадь: 272.10 m2

3 2 2

Первый этаж:
Проект симпатичного мансардного домика
Первый этаж:
Проект симпатичного мансардного домика
Чердак:
Проект симпатичного мансардного домика
Чердак:
Проект симпатичного мансардного домика
  • 4m011c
2 660 BYN
Цена: 2 660BYN
Цена: 2 660 BYN
Площадь: 215.60 m2

3 2 0

Первый этаж:
План уютного коттеджа площадью 132 кв. м, декорированного кирпичной кладкой
Первый этаж:
План уютного коттеджа площадью 132 кв. м, декорированного кирпичной кладкой
Второй этаж:
План уютного коттеджа площадью 132 кв. м, декорированного кирпичной кладкой
Второй этаж:
План уютного коттеджа площадью 132 кв. м, декорированного кирпичной кладкой
  • 4m467
2 390 BYN
Цена: 2 390BYN
Цена: 2 390 BYN
Площадь: 132.00 m2

4 2 0

Первый этаж:
Двухэтажный коттедж с кухней-гостиной
Первый этаж:
Двухэтажный коттедж с кухней-гостиной
Второй этаж:
Двухэтажный коттедж с кухней-гостиной
Второй этаж:
Двухэтажный коттедж с кухней-гостиной
Цокольный этаж:
Двухэтажный коттедж с кухней-гостиной
Цокольный этаж:
Двухэтажный коттедж с кухней-гостиной
  • 4m2316
3 470 BYN
Цена: 3 470BYN
Цена: 3 470 BYN
Площадь: 220.00 m2

4 4 0

Первый этаж:
Симпатичный коттедж с мастерской и двумя спальнями
Первый этаж:
Симпатичный коттедж с мастерской и двумя спальнями
  • 4m2318
2 390 BYN 2 390 BYN
Цена: 2 390BYN
Цена: 2 390 BYN 2 390 BYN
Площадь: 67.00 m2

2 1 0

Первый этаж:
Небольшой дом для загородного отдыха
Первый этаж:
Небольшой дом для загородного отдыха
  • 4m2314
2 390 BYN
Цена: 2 390BYN
Цена: 2 390 BYN
Площадь: 48.00 m2

0 1 0

Первый этаж:
Красивый светлый двухэтажный дом с большой террасой на втором этаже
Первый этаж:
Красивый светлый двухэтажный дом с большой террасой на втором этаже
Второй этаж:
Красивый светлый двухэтажный дом с большой террасой на втором этаже
Второй этаж:
Красивый светлый двухэтажный дом с большой террасой на втором этаже
  • 4m694f
3 260 BYN
Цена: 3 260BYN
Цена: 3 260 BYN
Площадь: 177.92 m2

4 3 1

Первый этаж:
Просторный коттедж с мансардой
Первый этаж:
Просторный коттедж с мансардой
Второй этаж:
Просторный коттедж с мансардой
Второй этаж:
Просторный коттедж с мансардой
  • 4m852
5 630 BYN
Цена: 5 630BYN
Цена: 5 630 BYN
Площадь: 355.00 m2

4 3 2

Первый этаж:
Огромный загородный коттедж в американском стиле с гаражом в цокольном этаже
Первый этаж:
Огромный загородный коттедж в американском стиле с гаражом в цокольном этаже
Второй этаж:
Огромный загородный коттедж в американском стиле с гаражом в цокольном этаже
Второй этаж:
Огромный загородный коттедж в американском стиле с гаражом в цокольном этаже
Цокольный этаж:
Огромный загородный коттедж в американском стиле с гаражом в цокольном этаже
Цокольный этаж:
Огромный загородный коттедж в американском стиле с гаражом в цокольном этаже
  • 4m856
9 720 BYN
Цена: 9 720BYN
Цена: 9 720 BYN
Площадь: 457.00 m2

6 2 2

Первый этаж:
Проект большого особняка с 5-ю просторными спальнями
Первый этаж:
Проект большого особняка с 5-ю просторными спальнями
Второй этаж:
Проект большого особняка с 5-ю просторными спальнями
Второй этаж:
Проект большого особняка с 5-ю просторными спальнями
  • 4m860
9 140 BYN
Цена: 9 140BYN
Цена: 9 140 BYN
Площадь: 581.00 m2

6 1 0

Смета на строительство: как предусмотреть все затраты?

  Говорят, что первый блин всегда комом. Плохо, если это жизненное правило будет действовать при возведении строения. Жилой дом - это не строительство шалаша в туристическом походе, где необходимые материалы просто поднимаются из-под ног, а устройство стен  и крыши выполняется исключительно по полету фантазии.  Серьезное дело требует мудрого подхода.

  Очень пессимистическая поговорка. Особенно для того кто долго копил деньги, мечтал долгими бессонными ночами и вот наконец-то собрался строить дом. Какой первый блин/дом комом? Второго-то может и не быть.

  С домом должно быть все по-другому. Строить жилье начинают с проекта. В документе есть все: какие материалы, сколько метров, где кухня и как стоять ванной. Разобрано по этажам, просчитано по метрам. А если есть 3D-визуализация, то легко представить как хорошо смотреться будут розовые кусты на фоне красивых стен.

  Остался один самый важный и оттого немного устрашающий вопрос: во сколько выльется воплощение наших фантазий в денежном эквиваленте? Ответ спрятан в главном финансовом документе: смета на строительство.

Смета на строительство: тонкости составления главного финансового документа

  Как составить важный документ? Все начинается с проекта.

  Для составления сметы на строительство сметчик берет проект, раскладывает перед собой чертежи и начинает работать. Профессионалу потребуются все сведения: иметь список материалов и инструментов, цены на выполнение всех видов услуг, перечень машин и механизмов, участвующих в строительстве. Все это надлежит знать перед началом составления сметы. Сюда же добавятся накладные расходы и непредвиденные затраты  связанные с рисками. Все эти сведения требуется учесть.

  В полученной сметной документации обязательно определяются сроки всех этапов строительства, полный объем будущих работ, количество и качество применяемых технологических процессов, наличие стройматериалов. Даже указан численный состав и профессии той гвардии работников, работа которых потребуются на объекте. Для удобства рассматривается поэтапное финансирование проекта.

Для чего необходима смета на строительство?

  Смета дает полную финансовую информацию по строительству. Документ позволяет контролировать проводимые дела на всех стадиях: разделение на работы с информацией распределение денежных средств по этапам стройки. Потребность в материалах как основных, так и вспомогательных. Сколько потребуется работников от каждой профессии и какой уровень их квалификации.

  До начала работы трудно предусмотреть все денежные траты на общение с органами местной власти, их стоимость в процентном отношении предусмотрена как непредвиденные расходы.

Смета на строительство: кому доверить расчет

   На просторах интернета размещено много руководств по самостоятельному составлению сметной документации. Но смета на строительство относится к тем работам где все имеет решающее значение. Точно так же как неправильно проставленная запятая может на порядок изменить результат умножения, мельчайшая ошибка влияет на всю итоговую сумму расчета. Важный совет: ответственно подойдите к выбору организации которой доверите составление главного финансового документа стройки. 

  Специалисты интернет-компании Dom4M проекты домов гарантируют вам качественный расчет сметы на строительство по приемлемой цене. Наш многолетний успешный опыт и безупречная репутация на строительном рынке — лучшая гарантия высокого качества работы.

Отзывы об этом каталоге проектов
Чтобы оставить отзыв, Вы должны либо заполнить поля ниже, либо авторизироваться на сайте.
Загрузить фото, до 5 штук
Ваша оценка:
Категории
© 2010-2021 Dom4M. Все права защищены
This site is protected by reCAPTCHA and the Google Privacy Policy and Terms of Service apply